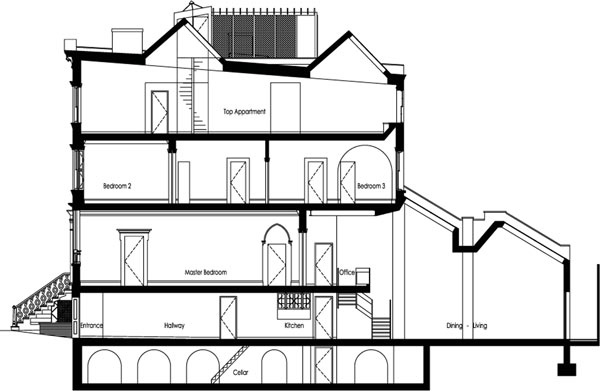
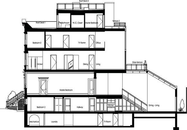
La residencia Isaly es una deslumbrante triplex diseñado por la familia Isaly en una casa de 1848 en el parque Gramercy en la ciudad de Nueva York. Fractal Construction ha colaborado con el diseñador de iluminación Ingo Maurer y el esculptor Emilio García para conseguir los increíbles efectos que se aprecian en las fotografías.
Inspirante diseño interior en Nueva York
0
Share.





















